Mieszkanie, 184 m2, Warszawa
Mieszkanie na sprzedaż, Warszawa, Warszawa Wawer Las
Cena: 2 888 800 PLN
15 667 PLN/m2
|
Marek Tomczyk
nr licencji: 4145 |
| Telefon: 509 165 458 |
| m.tomczyk.nieruchomosci@gmail.com |
CHCESZ DOWIEDZIEĆ SIĘ WIĘCEJ?
Oferta wyświetlona 85 razy
Opis
Dwu poziomowe, 5-pokojowe nowoczesne mieszkanie z ogrodem i garażem na 2 samochody - Wawer, ul. Poprawna
Cena: 2 888 800 zł
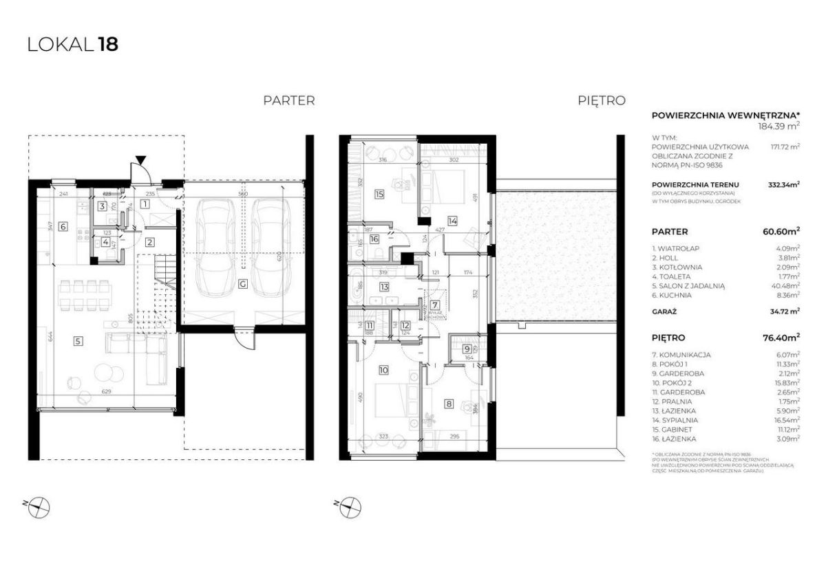
Powierzchnia mieszkania 184,39 m²
Powierzchnia terenu 332,34 m²
Bezpośrednio od dewelopera
Na sprzedaż komfortowe, dwu poziomowe, 5-pokojowe mieszkanie o powierzchni 184,39 m², z garażem, na Wawrze przy ul. Poprawnej .
Przemyślany układ pomieszczeń zapewnia wygodę zarówno rodzinie, jak i parze czy singlowi poszukującemu przestrzeni do życia i pracy w jednym miejscu.
Rozkład pomieszczeń:
Parter - 60,60 m²
Wiatrołap - 4,09 m²
Holl - 3,81 m²
Kotłownia - 2,09 m²
Salon z jadalnią - 40,48 m²
Kuchnia - 8,36 m²
Toaleta - 1,77 m²
Piętro - 76,40 m²
Komunikacja - 6,07 m²
Pokój 1 - 11,33 m²
Pokój 2 - 15,83 m²
Łazienka 1 - 5,90 m²
Łazienka 2 - 3,09 m²
Sypialnia - 16,54 m²
Garderoba 1 - 2,12 m²
Garderoba 2 - 2,65 m²
Gabinet - 11,12 m²
Pralnia - 1,75 m²
Garaż - 34,72 m²
O inwestycji
Wysokie i jasne wnętrza podkreślają komfort życia — 2,85 m wysokości na parterze oraz 2,65 m na piętrze.Każdy dom wyposażono w gniazdko do ładowania pojazdów elektrycznych, a dla większej wygody przewidziano możliwość wykonania zadaszenia na samochód.Dodatkowo istnieje opcja montażu klimatyzacji oraz paneli fotowoltaicznych, co pozwala dostosować dom do indywidualnych potrzeb i zwiększyć jego energooszczędność.
Dodatkowe informacje
Do wyboru przygotowano pięć zróżnicowanych typów metraży, z których każdy posiada własny ogródek — idealne rozwiązanie dla osób poszukujących domu z prywatną przestrzenią w Warszawie.Duże przeszklenia oraz przestronne tarasy nadają wnętrzom lekkości i wakacyjnego charakteru.Cała inwestycja łączy w sobie nowoczesną architekturę z funkcjonalnymi rozwiązaniami, tworząc przestrzeń wygodną do życia na co dzień.
Posiadamy również inne lokale w tej inwestycji.
Zadzwoń i umów się na prezentację!
Zamieszkaj nowocześnie, wysoko i wygodnie - z własnym tarasem, antresolą iświetnym dojazdem do centrum!
Kontakt:
Marek 509 165 458
Więcej ofert na stronach: kobrynski.pl, www.grewal.com.pl
Oferta nr 443270013 wysłana z systemu LocumNet Online
Cena: 2 888 800 zł
Powierzchnia mieszkania 184,39 m²
Powierzchnia terenu 332,34 m²
Bezpośrednio od dewelopera
Na sprzedaż komfortowe, dwu poziomowe, 5-pokojowe mieszkanie o powierzchni 184,39 m², z garażem, na Wawrze przy ul. Poprawnej .
Przemyślany układ pomieszczeń zapewnia wygodę zarówno rodzinie, jak i parze czy singlowi poszukującemu przestrzeni do życia i pracy w jednym miejscu.
Rozkład pomieszczeń:
Parter - 60,60 m²
Wiatrołap - 4,09 m²
Holl - 3,81 m²
Kotłownia - 2,09 m²
Salon z jadalnią - 40,48 m²
Kuchnia - 8,36 m²
Toaleta - 1,77 m²
Piętro - 76,40 m²
Komunikacja - 6,07 m²
Pokój 1 - 11,33 m²
Pokój 2 - 15,83 m²
Łazienka 1 - 5,90 m²
Łazienka 2 - 3,09 m²
Sypialnia - 16,54 m²
Garderoba 1 - 2,12 m²
Garderoba 2 - 2,65 m²
Gabinet - 11,12 m²
Pralnia - 1,75 m²
Garaż - 34,72 m²
O inwestycji
Wysokie i jasne wnętrza podkreślają komfort życia — 2,85 m wysokości na parterze oraz 2,65 m na piętrze.Każdy dom wyposażono w gniazdko do ładowania pojazdów elektrycznych, a dla większej wygody przewidziano możliwość wykonania zadaszenia na samochód.Dodatkowo istnieje opcja montażu klimatyzacji oraz paneli fotowoltaicznych, co pozwala dostosować dom do indywidualnych potrzeb i zwiększyć jego energooszczędność.
Dodatkowe informacje
Do wyboru przygotowano pięć zróżnicowanych typów metraży, z których każdy posiada własny ogródek — idealne rozwiązanie dla osób poszukujących domu z prywatną przestrzenią w Warszawie.Duże przeszklenia oraz przestronne tarasy nadają wnętrzom lekkości i wakacyjnego charakteru.Cała inwestycja łączy w sobie nowoczesną architekturę z funkcjonalnymi rozwiązaniami, tworząc przestrzeń wygodną do życia na co dzień.
Posiadamy również inne lokale w tej inwestycji.
Zadzwoń i umów się na prezentację!
Zamieszkaj nowocześnie, wysoko i wygodnie - z własnym tarasem, antresolą iświetnym dojazdem do centrum!
Kontakt:
Marek 509 165 458
Więcej ofert na stronach: kobrynski.pl, www.grewal.com.pl
Oferta nr 443270013 wysłana z systemu LocumNet Online
Szczegóły
| Numer oferty | 443270013 |
| Typ oferty | Mieszkanie |
| Rodzaj transakcji | Sprzedaż |
| Cena | 2 888 800 PLN |
| Cena za m2 | 15 667 PLN |
| Liczba pokoi | 5 |
| Piętro | Parter |
| Liczba pięter | 1 |
| Powierzchnia | 184 m2 |
| Miejscowość | Warszawa |
| Dzielnica | Warszawa Wawer Las |
| Województwo | MAZOWIECKIE |
| Ulica/Osiedle | Poprawna |
| Powiat | warszawski |
| Gmina | Warszawa |
| Rok budowy | 2025 |
Nieruchomości Waldemar Kobryński
Odwiedź nasze biuro i opowiedz nam o Twoich oczekiwaniach!Adres naszego biura
ul.Broniewskiego 28, 01-771 WarszawaZadzwoń do nas
Znajdziemy dla Ciebie interesującą ofertę, która będzie dostosowana do Twoich wymagań.CHCESZ DOWIEDZIEĆ SIĘ WIĘCEJ?





