Domy - bliźniak, 111 m2, Warszawa
Domy - bliźniak na sprzedaż, Warszawa, Warszawa Wilanów Zawady
Cena: 2 710 778 PLN
24 499 PLN/m2
|
Marek Tomczyk
nr licencji: 4145 |
| Telefon: 509 165 458 |
| m.tomczyk.nieruchomosci@gmail.com |
CHCESZ DOWIEDZIEĆ SIĘ WIĘCEJ?
Oferta wyświetlona 83 razy
Opis
4-pokojowe nowoczesne mieszkanie z ogrodem - Wilanów, ul. Zdrowa
Cena: 2 710 778 zł
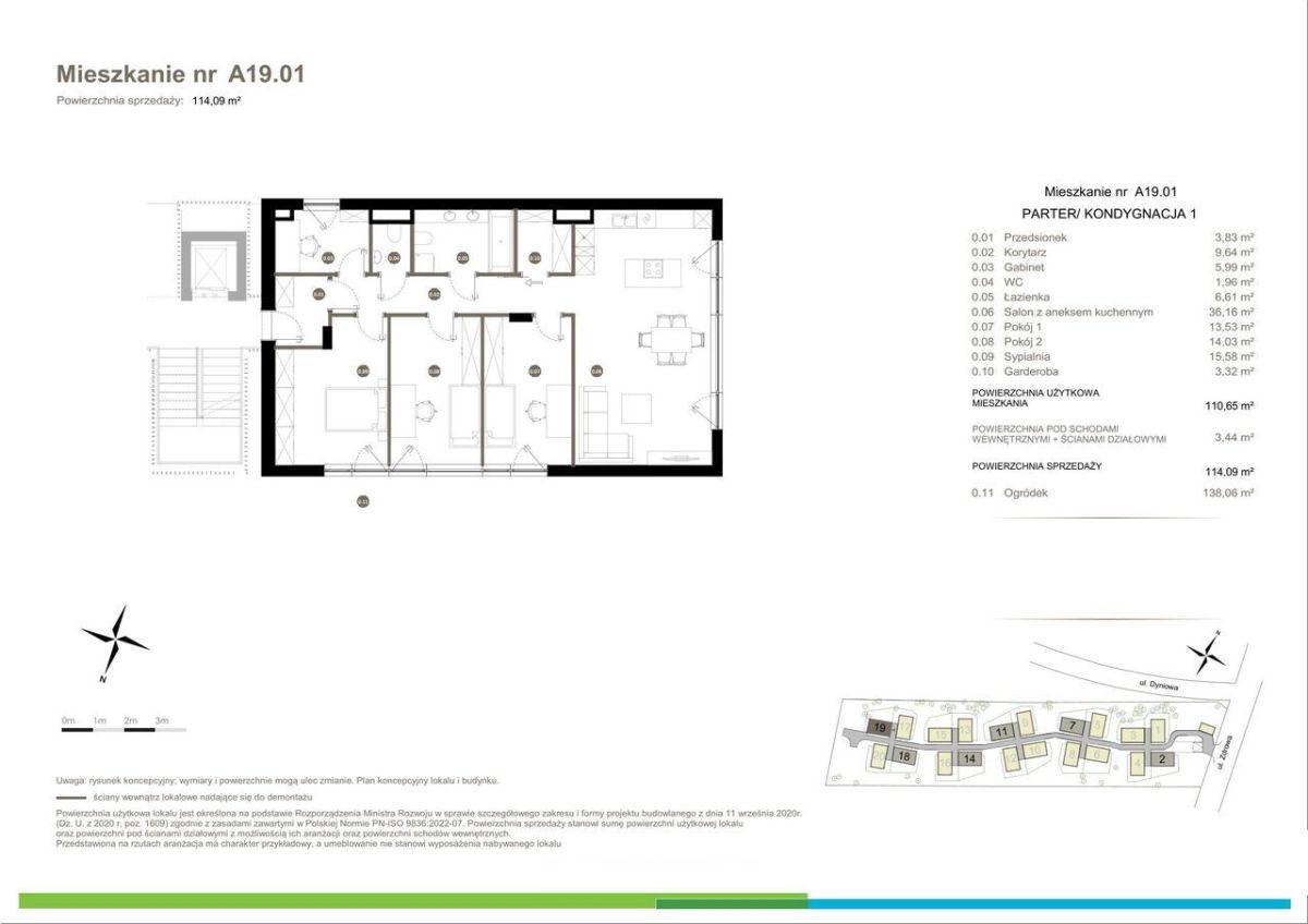
Powierzchnia mieszkania 110,65 m²
Bezpośrednio od dewelopera
Na sprzedaż komfortowe, 4-pokojowe mieszkanie o powierzchni 110,65 m², na Wilanowie przy ul. Zdrowej.
Przemyślany układ pomieszczeń zapewnia wygodę zarówno rodzinie, jak i parze czy singlowi poszukującemu przestrzeni do życia i pracy w jednym miejscu.
Rozkład pomieszczeń:
Przedsionek - 3,83 m²
Korytarz - 9,64 m²
Gabinet - 5,99 m²
WC - 1,96 m²
Łazienka - 6,61 m²
Salon z aneksem kuchennym - 36,16 m²
Pokój 1 - 13,53 m²
Pokój 2 - 14,03 m²
Sypialnia - 15,58 m²
Garderoba - 3,32 m²
Ogród - 138,06 m²
O inwestycji
Inwestycja obejmuje 28 jednorodzinnych budynków dwulokalowych, co daje łącznie 56 komfortowych lokali mieszkalnych. Cały ruch samochodowy został zaplanowany pod zadaszonym przejazdem, dzięki czemu teren osiedla pozostanie przestrzenią wyłącznie dla pieszych i rowerzystów — bezpieczną, cichą i wolną od spalin.
Ponad 73% powierzchni inwestycji stanowić będą starannie zaprojektowane tereny zielone, które stworzą przyjazne, naturalne otoczenie sprzyjające wypoczynkowi. Niska, kameralna zabudowa oraz duże odległości pomiędzy budynkami zapewnią mieszkańcom poczucie prywatności i komfortu.
Dodatkowe informacje
Przemyślany układ domów gwarantuje maksymalną intymność i wygodę. Nowoczesna architektura w połączeniu z niską zabudową nadaje osiedlu prestiżowy charakter. Otaczająca zieleń skutecznie izoluje od miejskiego zgiełku, tworząc idealne warunki do relaksu.
Dzięki przeniesieniu ruchu kołowego pod zadaszony przejazd, przestrzeń osiedla pozostaje w pełni przyjazna mieszkańcom — bez hałasu, bez spalin, z bezpiecznymi alejkami dla pieszych i rowerzystów.
Posiadamy również inne lokale w tej inwestycji.
Zadzwoń i umów się na prezentację!
Zamieszkaj nowocześnie, wysoko i wygodnie - z własnym tarasem, antresolą iświetnym dojazdem do centrum!
Kontakt:
Marek 509 165 458
Więcej ofert na stronach: kobrynski.pl, www.grewal.com.pl
Oferta nr 443490013 wysłana z systemu LocumNet Online
Cena: 2 710 778 zł
Powierzchnia mieszkania 110,65 m²
Bezpośrednio od dewelopera
Na sprzedaż komfortowe, 4-pokojowe mieszkanie o powierzchni 110,65 m², na Wilanowie przy ul. Zdrowej.
Przemyślany układ pomieszczeń zapewnia wygodę zarówno rodzinie, jak i parze czy singlowi poszukującemu przestrzeni do życia i pracy w jednym miejscu.
Rozkład pomieszczeń:
Przedsionek - 3,83 m²
Korytarz - 9,64 m²
Gabinet - 5,99 m²
WC - 1,96 m²
Łazienka - 6,61 m²
Salon z aneksem kuchennym - 36,16 m²
Pokój 1 - 13,53 m²
Pokój 2 - 14,03 m²
Sypialnia - 15,58 m²
Garderoba - 3,32 m²
Ogród - 138,06 m²
O inwestycji
Inwestycja obejmuje 28 jednorodzinnych budynków dwulokalowych, co daje łącznie 56 komfortowych lokali mieszkalnych. Cały ruch samochodowy został zaplanowany pod zadaszonym przejazdem, dzięki czemu teren osiedla pozostanie przestrzenią wyłącznie dla pieszych i rowerzystów — bezpieczną, cichą i wolną od spalin.
Ponad 73% powierzchni inwestycji stanowić będą starannie zaprojektowane tereny zielone, które stworzą przyjazne, naturalne otoczenie sprzyjające wypoczynkowi. Niska, kameralna zabudowa oraz duże odległości pomiędzy budynkami zapewnią mieszkańcom poczucie prywatności i komfortu.
Dodatkowe informacje
Przemyślany układ domów gwarantuje maksymalną intymność i wygodę. Nowoczesna architektura w połączeniu z niską zabudową nadaje osiedlu prestiżowy charakter. Otaczająca zieleń skutecznie izoluje od miejskiego zgiełku, tworząc idealne warunki do relaksu.
Dzięki przeniesieniu ruchu kołowego pod zadaszony przejazd, przestrzeń osiedla pozostaje w pełni przyjazna mieszkańcom — bez hałasu, bez spalin, z bezpiecznymi alejkami dla pieszych i rowerzystów.
Posiadamy również inne lokale w tej inwestycji.
Zadzwoń i umów się na prezentację!
Zamieszkaj nowocześnie, wysoko i wygodnie - z własnym tarasem, antresolą iświetnym dojazdem do centrum!
Kontakt:
Marek 509 165 458
Więcej ofert na stronach: kobrynski.pl, www.grewal.com.pl
Oferta nr 443490013 wysłana z systemu LocumNet Online
Szczegóły
| Numer oferty | 443490013 |
| Typ oferty | Domy - bliźniak |
| Rodzaj transakcji | Sprzedaż |
| Cena | 2 710 778 PLN |
| Cena za m2 | 24 499 PLN |
| Liczba pokoi | 4 |
| Piętro | Parter |
| Liczba pięter | 1 |
| Powierzchnia | 111 m2 |
| Powierzchnia działki | 138 m2 |
| Miejscowość | Warszawa |
| Dzielnica | Warszawa Wilanów Zawady |
| Województwo | MAZOWIECKIE |
| Ulica/Osiedle | Zdrowa |
| Powiat | warszawski |
| Gmina | Warszawa |
| Rok budowy | 2026 |
Nieruchomości Waldemar Kobryński
Odwiedź nasze biuro i opowiedz nam o Twoich oczekiwaniach!Adres naszego biura
ul.Broniewskiego 28, 01-771 WarszawaZadzwoń do nas
Znajdziemy dla Ciebie interesującą ofertę, która będzie dostosowana do Twoich wymagań.CHCESZ DOWIEDZIEĆ SIĘ WIĘCEJ?








